HAMPSHIRE

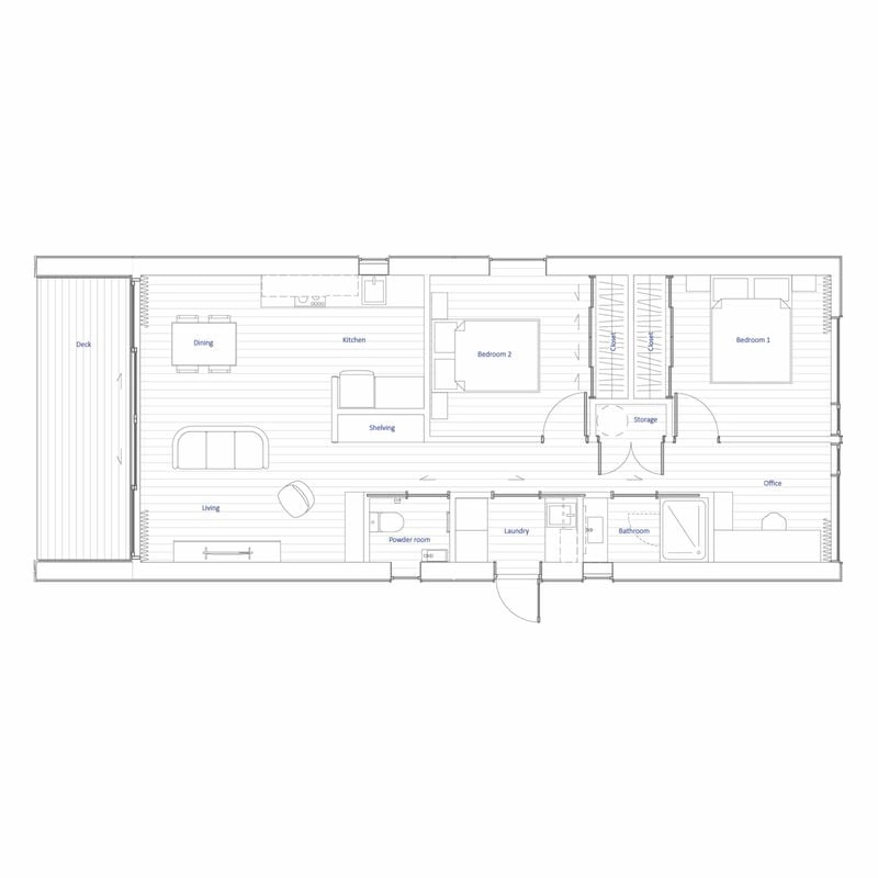
The Hampshire brings generous, flexible living to a smart 70m² design. Featuring two spacious bedrooms with double wardrobes and a dedicated ofce complete with built-in desk, it’s perfect for work, rest, and everything in between. Thoughtful touches, from ample storage and a separate laundry to a bathroom with large shower and powder room, make everyday living effortless. Soaring raked gable ceilings and expansive sliding doors fill the home with natural light, while the 10m² deck extends your living outdoors for year-round enjoyment.

Photography provided is of the 42.95m² Dorset show home and is for illustrative purposes only; design, layout, materials, and finish may vary.

FEATURES

  • 70m2 house floor area.
  • 90.2m2 total area over frames.
  • Raked gable ceiling add to height and spaciousness.
  • Large sliding door brings in natural light.
  • Smart floor plan maximises space.
  • Two spacious bedrooms with double wardrobes.
  • Office space with built-in desk.
  • Bathroom with large shower.
  • Separate powder room with toilet.
  • Separate laundry with space for washer and dryer.
  • Ample storage throughout.
  • Large 10.08m² deck over frames for outdoor living.
  • Truss design.

PRICE

$263,200*

*A full list of inclusions and exclusions is available once you complete a Contact Us request.

* This calculation tool is designed to give an estimate only, we would recommend engaging in independent financial and legal advice.

Contact Us

"*" indicates required fields

HRM DEVELOPMENTS LTD

A: 124 Main Road, Wainuiomata
P: 020 4021 1718

Name*